Información de la propiedad

Chalets independientes en venta en Los Montesinos

460.000 € Ref. 20507 Disponible
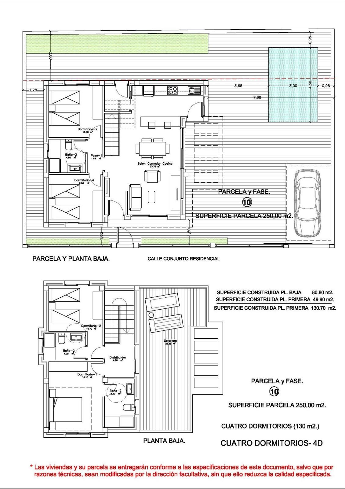
130 m2
Superficie
4
Habitaciones
3
Baños
Parking

Descripción

Modernas villas de nueva construcción en La Herrada Los Montesinos con piscina privada Exclusivo proyecto residencial en un entorno tranquilo Situada en la prestigiosa urbanización La Herrada, en Los Montesinos, esta exclusiva promoción de 16 modernas villas ofrece privacidad, comodidad y una excelente calidad de vida.

La Herrada es conocida por su tranquilo ambiente residencial, su proximidad a los servicios cotidianos y su privilegiada ubicación entre las famosas salinas de Torrevieja y La Mata.

Es un lugar ideal para aquellos que buscan un estilo de vida mediterráneo relajado y saludable en el sur de la Costa Blanca. Diseño contemporáneo con espacios interiores optimizados Cada villa tiene 130 m² de superficie habitable bien distribuida en dos plantas, diseñadas para maximizar la luz natural y la funcionalidad.

Construidas en parcelas a partir de 250 m², las propiedades ofrecen amplias zonas exteriores perfectas para tomar el sol, divertirse o relajarse junto a la piscina privada. Cómoda distribución en dos plantas La planta baja cuenta con un salón diáfano con cocina totalmente integrada y acceso directo al jardín y a la zona de la piscina.

Esta planta también incluye dos dormitorios, un cuarto de baño completo y un práctico lavadero. En la planta superior hay dos amplios dormitorios, cada uno con su propio cuarto de baño, uno de ellos en suite.

Ambos dormitorios tienen acceso a una terraza privada abierta de 28 m².

Para aquellos que deseen aún más espacio exterior, hay un solárium opcional en la azotea disponible con un coste adicional. Acabados de alta calidad y características modernas Las villas incluyen acabados de calidad, como muebles de baño, espejos, mamparas de ducha y calefacción por suelo radiante en todos los cuartos de baño.

Hay preinstalación para aire acondicionado por conductos, puerta de entrada motorizada para vehículos, aparcamiento privado en la parcela y acceso residencial cerrado a través de una calle interna privada. Ubicación privilegiada cerca de los principales servicios y atracciones Playas de Guardamar y Torrevieja a 9 km La Marquesa Golf, La Finca Golf y Vistabella Golf a menos de 5 km Aeropuerto de Alicante a 29 km Parques naturales, salinas, rutas ciclistas y senderos para hacer senderismo en las inmediaciones Viva cómodamente en el corazón de la Costa Blanca Estas villas de nueva construcción en Los Montesinos ofrecen la combinación perfecta de comodidad moderna, entorno natural y excelente accesibilidad.

Tanto si busca una residencia permanente como una casa de vacaciones, esta promoción le ofrece todo lo que necesita para disfrutar de un estilo de vida mediterráneo tranquilo y cómodo.

Póngase en contacto con nosotros hoy mismo para concertar una visita y asegurarse su nueva vivienda en La Herrada.

Características

  • Construidos: 130 m²
  • Parcela: 251 m²
  • Habitaciones: 4
  • Baños: 3
  • Parking:
  • Aire acondicionado
  • Piscina privada
  • Zonas verdes

Certificado energético

Consumo: B

Ubicación

Zona: Los Montesinos, Alicante

Pregunta por el precio con Hipoteca

Solicita información

Otras viviendas que pueden interesarte

Tu hipoteca ideal y a medida

Te ayudamos a encontrar una hipoteca que encaje contigo y con la vivienda que quieres comprar. Analizamos tu situación, resolvemos tus dudas y te proponemos opciones realistas. Rellena el formulario y un asesor se pondrá en contacto contigo para orientarte paso a paso.

Hipoteca 100%

Según tu perfil y la operación, podemos estudiar opciones de alta financiación y ayudarte a plantear la compra (y, en algunos casos, la reforma).

Hipoteca Joven

Si tienes menos de 35, tienes ventajas para comprar antes. Te orientamos sobre opciones con mayor financiación y condiciones adaptadas.

Hipoteca Tranquilidad

Cuota estable para dormir tranquilo. Buscamos opciones a tipo fijo con condiciones claras y plazos que se ajusten a tu economía.

Hipoteca Premium

Menos ataduras, más claridad. Estudiamos alternativas con vinculaciones reducidas y te explicamos qué compensa en tu caso.

Hipoteca Reunifica

Una sola cuota para ordenar tus finanzas. Valoramos si te conviene reunificar deudas para reducir la cuota mensual y ganar margen.

Cambio de Casa

Compra tu nueva casa sin frenar la venta de la anterior. Te orientamos sobre soluciones puente para que puedas hacer el cambio con más tranquilidad.

Encuentra la vivienda ideal para ti

Te ayudamos a encontrar la propiedad perfecta según tus necesidades y presupuesto. Nuestro equipo de expertos te asesorará en cada paso del proceso para que tu compra sea segura, rápida y sin complicaciones.

Te acompañamos hastata el final

Nuestro compromiso no termina con la venta. Con nuestro servicio de post-venta, te acompañamos en cada detalle para que el proceso sea sencillo y sin preocupaciones.

Asesoría inmobiliaria a tu medida

Déjate guiar por nuestros expertos y obtén el mejor asesoramiento en compra, venta o alquiler de propiedades. Conocemos el mercado y te ofrecemos soluciones personalizadas para que tomes decisiones estratégicas con confianza y seguridad.

Impulsa tu propiedad con nuestros servicios

Selecciona el servicio que necesitas y nuestro equipo de expertos se pondrá en contacto contigo para ofrecerte la mejor estrategia. Desde marketing inmobiliario hasta fotografía profesional o tour virtual, te ayudamos a destacar en el mercado.

Descubre el valor real de tu vivienda

Déjanos tus datos y nuestro equipo de expertos analizará tu propiedad para ofrecerte una valoración precisa basada en el mercado actual. Te ayudamos a tomar la mejor decisión para vender con éxito.

¿Listo para vender?

Te ayudamos en cada paso para conseguir el mejor precio

Déjanos tus datos y uno de nuestros expertos se pondrá en contacto contigo para asesorarte en cada paso del proceso de venta y conseguir las mejores condiciones.

Contacta con nuestro equipo

Déjanos tu mensaje y nuestro equipo se pondrá en contacto contigo para ayudarte con cualquier necesidad inmobiliaria.

Contacta con expertos en reformas

Para aumentar el valor de tu casa en tiempo récord

Resumen de privacidad

Esta web utiliza cookies para que podamos ofrecerte la mejor experiencia de usuario posible. La información de las cookies se almacena en tu navegador y realiza funciones tales como reconocerte cuando vuelves a nuestra web o ayudar a nuestro equipo a comprender qué secciones de la web encuentras más interesantes y útiles.