Información de la propiedad

áticos en venta en Torrevieja

áticos en venta en Torrevieja

440.000 € Ref. 19966 Disponible
87 m2
Superficie
2
Habitaciones
2
Baños

Descripción

Apartamentos de nueva construcción en el corazón de Torrevieja A tan solo 150 m de las piscinas naturales y el paseo marítimo y a 500 m de la Playa del Cura Ubicación privilegiada en el centro de Torrevieja Este nuevo edificio residencial goza de una ubicación inmejorable en el centro de Torrevieja, a solo 150 m del mar.

Rodeado de tiendas, supermercados, restaurantes y servicios cotidianos, ofrece todo lo necesario a poca distancia.

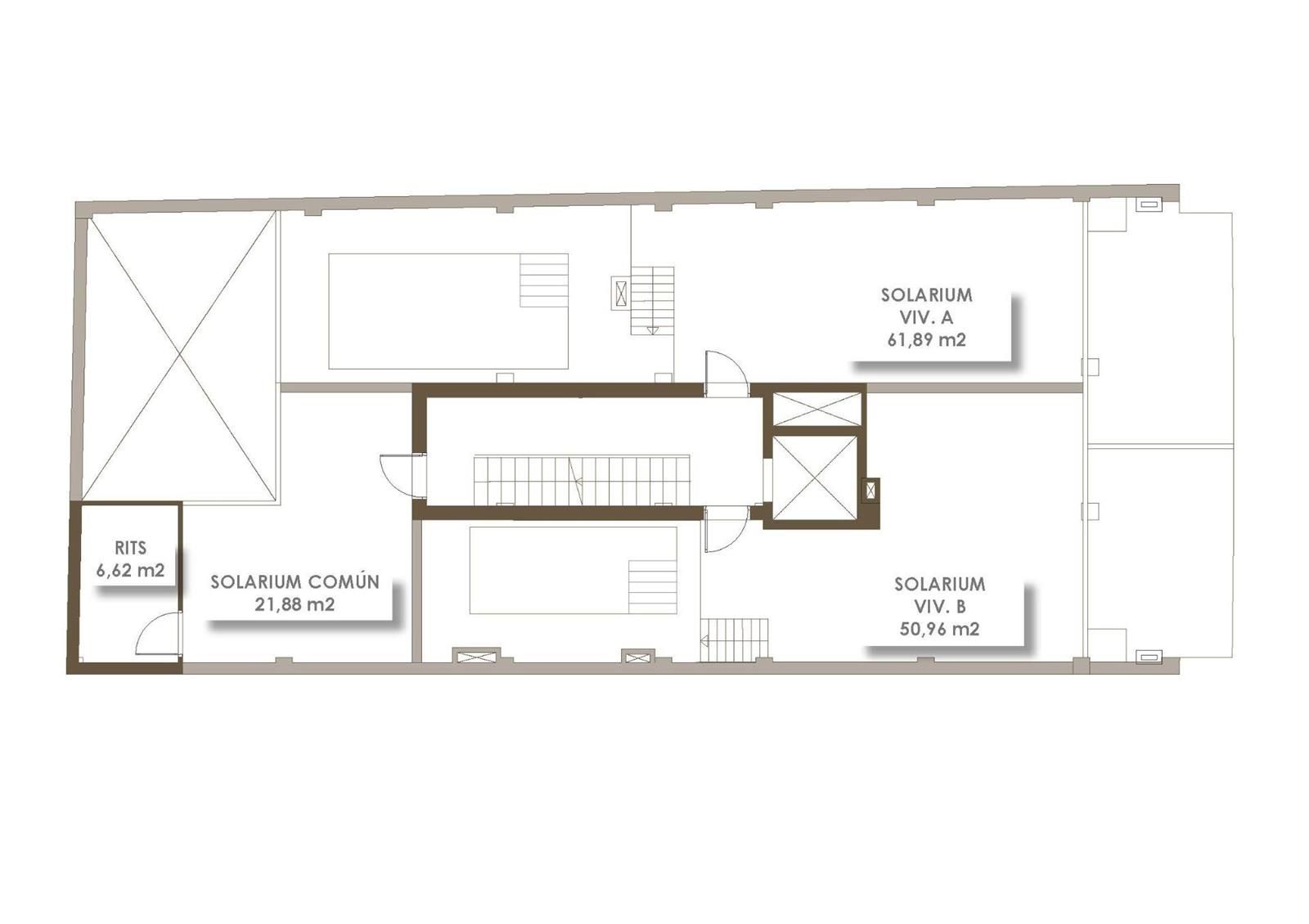
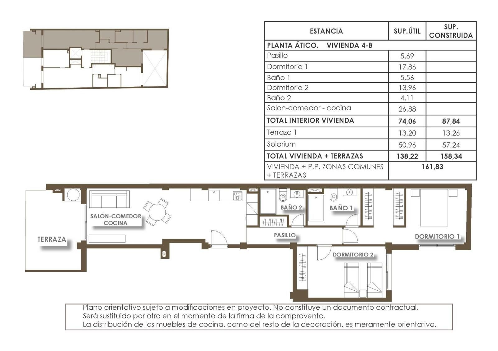
La zona también cuenta con parques, zonas de ocio y áreas verdes, creando un equilibrio perfecto entre las comodidades urbanas y los momentos de relax. Viviendas modernas de 1 y 2 dormitorios La promoción ofrece una selección de apartamentos de 1 y 2 dormitorios con 1 o 2 baños, incluyendo 2 áticos con solarium, barbacoa y piscina privada.

Cada vivienda está diseñada con un estilo contemporáneo, con distribuciones diáfanas, terrazas y cocinas integradas de estilo americano.

Los baños están totalmente equipados con muebles, mamparas de ducha y calefacción por suelo radiante.

Iluminación incluida.

Las cocinas incluyen electrodomésticos y cada apartamento cuenta con preinstalación para aire acondicionado por conductos. Zonas comunes La planta baja cuenta con una piscina comunitaria y una sauna.

En la azotea hay un solarium comunitario para poder tomar el sol. Vivir en un entorno natural y costero único Torrevieja es conocida por su cálido clima mediterráneo, con una temperatura media anual de 20 ºC, lo que la convierte en un lugar perfecto para vivir durante todo el año.

La ciudad es famosa por sus lagunas salinas naturales y el Parque Natural protegido de La Mata y Torrevieja, situado a solo 4 km de la urbanización.

Sus lagos rosados y verdes, sus pintorescas rutas de senderismo y su rica biodiversidad ofrecen un estilo de vida saludable e inspirador. Distancias a puntos de interés clave Puerto deportivo de Torrevieja 1 km Parque Natural de La Mata 4 km Villamartin Golf 8 km Aeropuerto de Alicante 45 km Aeropuerto de Murcia 60 km Experimente el estilo de vida mediterráneo No pierda la oportunidad de adquirir una vivienda moderna en una de las ciudades costeras más deseadas de la Costa Blanca.

Póngase en contacto con nosotros hoy mismo para concertar una visita y asegurarse su lugar en esta excepcional nueva promoción.

Características

  • Construidos: 87 m²
  • Habitaciones: 2
  • Baños: 2
  • Aire acondicionado
  • Ascensor
  • Piscina privada
  • Solárium

Certificado energético

Consumo: B

Ubicación

Zona: Torrevieja, Alicante

Pregunta por el precio con Hipoteca

Solicita información

Otras viviendas que pueden interesarte

Tu hipoteca ideal y a medida

Te ayudamos a encontrar una hipoteca que encaje contigo y con la vivienda que quieres comprar. Analizamos tu situación, resolvemos tus dudas y te proponemos opciones realistas. Rellena el formulario y un asesor se pondrá en contacto contigo para orientarte paso a paso.

Hipoteca 100%

Según tu perfil y la operación, podemos estudiar opciones de alta financiación y ayudarte a plantear la compra (y, en algunos casos, la reforma).

Hipoteca Joven

Si tienes menos de 35, tienes ventajas para comprar antes. Te orientamos sobre opciones con mayor financiación y condiciones adaptadas.

Hipoteca Tranquilidad

Cuota estable para dormir tranquilo. Buscamos opciones a tipo fijo con condiciones claras y plazos que se ajusten a tu economía.

Hipoteca Premium

Menos ataduras, más claridad. Estudiamos alternativas con vinculaciones reducidas y te explicamos qué compensa en tu caso.

Hipoteca Reunifica

Una sola cuota para ordenar tus finanzas. Valoramos si te conviene reunificar deudas para reducir la cuota mensual y ganar margen.

Cambio de Casa

Compra tu nueva casa sin frenar la venta de la anterior. Te orientamos sobre soluciones puente para que puedas hacer el cambio con más tranquilidad.

Encuentra la vivienda ideal para ti

Te ayudamos a encontrar la propiedad perfecta según tus necesidades y presupuesto. Nuestro equipo de expertos te asesorará en cada paso del proceso para que tu compra sea segura, rápida y sin complicaciones.

Te acompañamos hastata el final

Nuestro compromiso no termina con la venta. Con nuestro servicio de post-venta, te acompañamos en cada detalle para que el proceso sea sencillo y sin preocupaciones.

Asesoría inmobiliaria a tu medida

Déjate guiar por nuestros expertos y obtén el mejor asesoramiento en compra, venta o alquiler de propiedades. Conocemos el mercado y te ofrecemos soluciones personalizadas para que tomes decisiones estratégicas con confianza y seguridad.

Impulsa tu propiedad con nuestros servicios

Selecciona el servicio que necesitas y nuestro equipo de expertos se pondrá en contacto contigo para ofrecerte la mejor estrategia. Desde marketing inmobiliario hasta fotografía profesional o tour virtual, te ayudamos a destacar en el mercado.

Descubre el valor real de tu vivienda

Déjanos tus datos y nuestro equipo de expertos analizará tu propiedad para ofrecerte una valoración precisa basada en el mercado actual. Te ayudamos a tomar la mejor decisión para vender con éxito.

¿Listo para vender?

Te ayudamos en cada paso para conseguir el mejor precio

Déjanos tus datos y uno de nuestros expertos se pondrá en contacto contigo para asesorarte en cada paso del proceso de venta y conseguir las mejores condiciones.

Contacta con nuestro equipo

Déjanos tu mensaje y nuestro equipo se pondrá en contacto contigo para ayudarte con cualquier necesidad inmobiliaria.

Contacta con expertos en reformas

Para aumentar el valor de tu casa en tiempo récord

Resumen de privacidad

Esta web utiliza cookies para que podamos ofrecerte la mejor experiencia de usuario posible. La información de las cookies se almacena en tu navegador y realiza funciones tales como reconocerte cuando vuelves a nuestra web o ayudar a nuestro equipo a comprender qué secciones de la web encuentras más interesantes y útiles.