Información de la propiedad

Chalets independientes en venta en Pinoso

Chalets independientes en venta en Pinoso

356.000 € Ref. 19953 Disponible
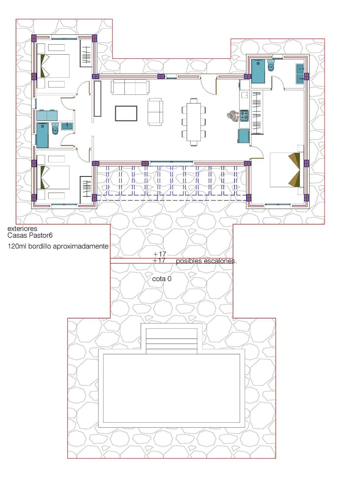
120 m2
Superficie
3
Habitaciones
2
Baños
Parking

Descripción

Villas de Obra Nueva en Pinoso en parcelas rústicas Puede elegir villas con toques tradicionales españoles o acabados super modernos, luminosos y limpios.

Hay varios tamaños a elegir entre 3 y 6 dormitorios y con 1 o 2 plantas. Diferentes parcelas legales disponibles a elegir (rústicas con un mínimo de 10. 000 m2), algunas a poca distancia de la ciudad, algunas totalmente privadas y las más populares están a 5-10 minutos en coche de una ciudad.

Tenemos una parcela para cada gusto, todas con vistas impresionantes y todas tienen agua de red + electricidad incluida en el precio e internet de alta velocidad disponible.

En el precio publicado hay incluidos 30. 000 eur destinados a la parcela, si la parcela elegida tiene un coste superior, se pagará la diferencia. Del mayor y mejor constructor de la zona y utilizamos materiales de primera calidad para un acabado perfecto. Todas las casas incluyen terraza de hormigón estampado de 2m alrededor de la piscina (color y patrón a elegir), 1m alrededor de la casa, entrada cerrada, vallado de 3. 000 m2, preinstalación de aire acondicionado por conductos, cocina estándar, puerta de seguridad, ventanas oscilobatientes alemanas (o correderas si se prefiere), chimenea empotrada (en acabado tradicional), preinstalación de televisión e internet, camino de grava más unos metros alrededor de la casa, fosa séptica. Los baños incluyen columna de ducha, plato de ducha o bañera, muebles de lavabo (varios colores a elegir) con fregaderos, grifos y espejos, además de una gran selección de azulejos de pared. Amplia selección de baldosas cerámicas para el suelo, de distintos colores, efecto madera, etc. Las cocinas incluyen armarios con puertas y tiradores estándar, fregadero y grifo de acero inoxidable, preinstalación para horno, lavavajillas, extractor.

Varias encimeras de granito a elegir.

Electrodomésticos no incluidos. Escalera de mármol (crema, blanco o gris) y barandillas incluidas, más barandillas para el porche delantero. Puede personalizar la casa a su gusto, la mayoría de los cambios internos son gratuitos, pudiendo elegir acabados en los azulejos, bancadas de cocina, mármol para las escaleras o repisas, etc.

Las casas se pueden ampliar e incluso podemos construir su propio diseño.

Puede contratar varios extras como una piscina más grande, garaje individual o doble, casa de invitados, etc. , con un coste adicional. La ciudad de Pinoso está aproximadamente a 45 minutos hacia el interior de Alicante y las playas de arena blanca de la Costa Blanca y cerca de la frontera de Murcia, Alicante. Tiene una población de poco menos de 8. 000 habitantes.

Pinoso, también conocido como El Pinos debe su nombre a los pinos que cubren las sierras de la zona.

Pinoso ofrece un estilo de vida rural español, sin semáforos, casi sin tráfico, prácticamente los únicos atascos son causados por los tractores que llevan las uvas a la Bodega.

Los campos están plantados de viñas, almendros y olivos.

En febrero los campos se llenan de almendros en flor de color rosa. Pinoso tiene muchos bares, restaurantes y tiendas, un nuevo centro médico 24 horas, dentistas, dos escuelas primarias y 1 secundaria, un teatro.

Hay un excelente centro deportivo con piscinas al aire libre, pistas de tenis, campos de fútbol y gimnasio, biblioteca y muchas otras instalaciones, incluyendo una hermosa zona de picnic entre los pinos, con barbacoas, zonas de estar y agua corriente.

Características

  • Construidos: 120 m²
  • Parcela: 10.000 m²
  • Habitaciones: 3
  • Baños: 2
  • Parking:
  • Aire acondicionado
  • Piscina privada
  • Zonas verdes

Certificado energético

Consumo: B

Ubicación

Zona: Pinoso, Alicante

Pregunta por el precio con Hipoteca

Solicita información

Otras viviendas que pueden interesarte

Tu hipoteca ideal y a medida

Te ayudamos a encontrar una hipoteca que encaje contigo y con la vivienda que quieres comprar. Analizamos tu situación, resolvemos tus dudas y te proponemos opciones realistas. Rellena el formulario y un asesor se pondrá en contacto contigo para orientarte paso a paso.

Hipoteca 100%

Según tu perfil y la operación, podemos estudiar opciones de alta financiación y ayudarte a plantear la compra (y, en algunos casos, la reforma).

Hipoteca Joven

Si tienes menos de 35, tienes ventajas para comprar antes. Te orientamos sobre opciones con mayor financiación y condiciones adaptadas.

Hipoteca Tranquilidad

Cuota estable para dormir tranquilo. Buscamos opciones a tipo fijo con condiciones claras y plazos que se ajusten a tu economía.

Hipoteca Premium

Menos ataduras, más claridad. Estudiamos alternativas con vinculaciones reducidas y te explicamos qué compensa en tu caso.

Hipoteca Reunifica

Una sola cuota para ordenar tus finanzas. Valoramos si te conviene reunificar deudas para reducir la cuota mensual y ganar margen.

Cambio de Casa

Compra tu nueva casa sin frenar la venta de la anterior. Te orientamos sobre soluciones puente para que puedas hacer el cambio con más tranquilidad.

Encuentra la vivienda ideal para ti

Te ayudamos a encontrar la propiedad perfecta según tus necesidades y presupuesto. Nuestro equipo de expertos te asesorará en cada paso del proceso para que tu compra sea segura, rápida y sin complicaciones.

Te acompañamos hastata el final

Nuestro compromiso no termina con la venta. Con nuestro servicio de post-venta, te acompañamos en cada detalle para que el proceso sea sencillo y sin preocupaciones.

Asesoría inmobiliaria a tu medida

Déjate guiar por nuestros expertos y obtén el mejor asesoramiento en compra, venta o alquiler de propiedades. Conocemos el mercado y te ofrecemos soluciones personalizadas para que tomes decisiones estratégicas con confianza y seguridad.

Impulsa tu propiedad con nuestros servicios

Selecciona el servicio que necesitas y nuestro equipo de expertos se pondrá en contacto contigo para ofrecerte la mejor estrategia. Desde marketing inmobiliario hasta fotografía profesional o tour virtual, te ayudamos a destacar en el mercado.

Descubre el valor real de tu vivienda

Déjanos tus datos y nuestro equipo de expertos analizará tu propiedad para ofrecerte una valoración precisa basada en el mercado actual. Te ayudamos a tomar la mejor decisión para vender con éxito.

¿Listo para vender?

Te ayudamos en cada paso para conseguir el mejor precio

Déjanos tus datos y uno de nuestros expertos se pondrá en contacto contigo para asesorarte en cada paso del proceso de venta y conseguir las mejores condiciones.

Contacta con nuestro equipo

Déjanos tu mensaje y nuestro equipo se pondrá en contacto contigo para ayudarte con cualquier necesidad inmobiliaria.

Contacta con expertos en reformas

Para aumentar el valor de tu casa en tiempo récord

Resumen de privacidad

Esta web utiliza cookies para que podamos ofrecerte la mejor experiencia de usuario posible. La información de las cookies se almacena en tu navegador y realiza funciones tales como reconocerte cuando vuelves a nuestra web o ayudar a nuestro equipo a comprender qué secciones de la web encuentras más interesantes y útiles.