Información de la propiedad

Bungalows planta baja en venta en Pilar De La Horadada

Bungalows planta baja en venta en Pilar De La Horadada

369.900 € Ref. 19702 Disponible
90 m2
Superficie
3
Habitaciones
2
Baños

Descripción

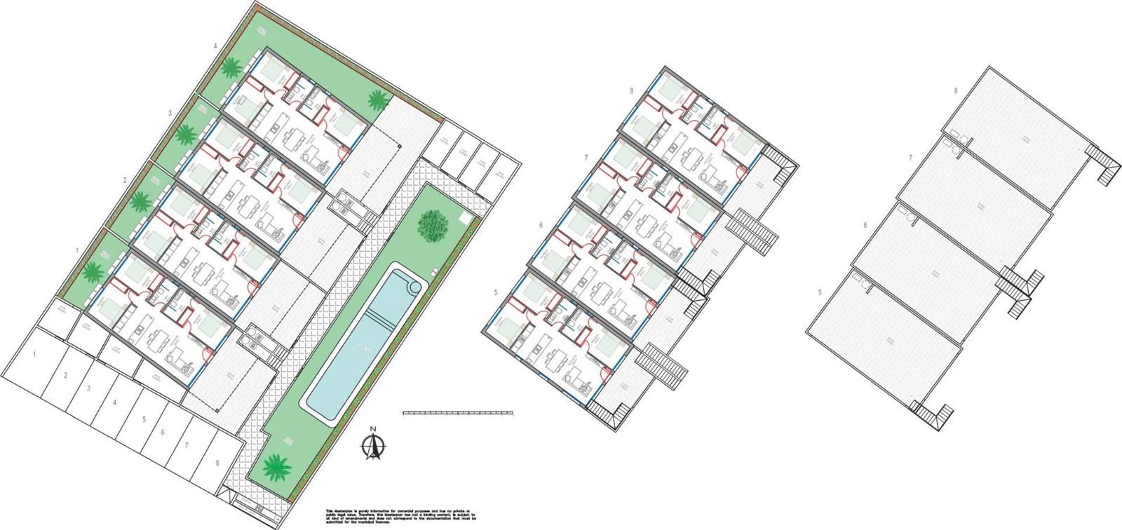
Residencias exclusivas de nueva construcción en Pilar de la Horadada, Costa Blanca Vida mediterránea moderna cerca de la playa Descubra esta exclusiva promoción de solo 8 viviendas contemporáneas en Pilar de la Horadada, situada a poca distancia del centro de la ciudad y a solo 3, 5 km de las hermosas playas de Torre de la Horadada y Mil Palmeras.

Esta encantadora localidad costera, situada en el extremo sur de la Costa Blanca, es conocida por su ambiente relajado, su encanto tradicional español y sus excelentes servicios.

Los residentes disfrutan de una amplia gama de servicios, como supermercados, restaurantes, tiendas y zonas de ocio, todo ello a solo unos minutos. Viviendas elegantes diseñadas para ofrecer comodidad y estilo La promoción ofrece una selección de apartamentos en planta baja con terrazas frontales y jardines privados, o apartamentos en la última planta con amplias terrazas y soláriums privados.

Cada vivienda cuenta con 3 dormitorios y 2 baños, uno de ellos en suite, diseñados con líneas modernas y acabados de alta calidad para garantizar el máximo confort. El complejo residencial cuenta con una piscina comunitaria rodeada de jardines, lo que crea un ambiente acogedor y tranquilo para el descanso y el ocio.

Cada propiedad incluye también una plaza de aparcamiento privada y un trastero. Acabados de alta calidad y prestaciones premium Estas viviendas de nueva construcción han sido construidas con materiales de primera calidad y atención al detalle.

Las especificaciones clave incluyen: Carpintería exterior de aluminio en gris antracita con rotura de puente térmico (marca CORTIZO) Acristalamiento cuádruple con protección solar Persianas eléctricas de aluminio en los dormitorios Inodoros suspendidos y duchas a ras de suelo con suelo integrado Muebles de baño con espejos retroiluminados por LED y toalleros eléctricos Cocina totalmente equipada con electrodomésticos Miele Iluminación LED interior y exterior en toda la vivienda Instalación completa de aire acondicionado por conductos (sistema Fujitsu) Ubicación perfecta en la Costa Blanca Pilar de la Horadada tiene una ubicación ideal tanto para vivir como para pasar las vacaciones.

La localidad combina lo mejor de la vida tradicional española con unas infraestructuras modernas y la proximidad al mar. Distancias principales: Playas de Torre de la Horadada y Mil Palmeras: 3, 5 km Campo de golf Lo Romero: 6 km Aeropuerto de Murcia-Corvera: 40 km Aeropuerto de Alicante: 55 km Puerto deportivo de San Pedro del Pinatar: 10 km Su nuevo hogar bajo el sol le espera Disfrute de la combinación perfecta de diseño, comodidad y estilo de vida mediterráneo en estas viviendas de nueva construcción en Pilar de la Horadada.

Tanto si busca un refugio para las vacaciones como una residencia para todo el año, este exclusivo proyecto ofrece el equilibrio ideal entre calidad, ubicación y vida moderna. Póngase en contacto con nosotros hoy mismo para obtener más información o concertar una visita.

Características

  • Construidos: 90 m²
  • Habitaciones: 3
  • Baños: 2
  • Piscina privada
  • Solárium

Certificado energético

Consumo: B

Ubicación

Zona: Pilar De La Horadada, Alicante

Pregunta por el precio con Hipoteca

Solicita información

Otras viviendas que pueden interesarte

Tu hipoteca ideal y a medida

Te ayudamos a encontrar una hipoteca que encaje contigo y con la vivienda que quieres comprar. Analizamos tu situación, resolvemos tus dudas y te proponemos opciones realistas. Rellena el formulario y un asesor se pondrá en contacto contigo para orientarte paso a paso.

Hipoteca 100%

Según tu perfil y la operación, podemos estudiar opciones de alta financiación y ayudarte a plantear la compra (y, en algunos casos, la reforma).

Hipoteca Joven

Si tienes menos de 35, tienes ventajas para comprar antes. Te orientamos sobre opciones con mayor financiación y condiciones adaptadas.

Hipoteca Tranquilidad

Cuota estable para dormir tranquilo. Buscamos opciones a tipo fijo con condiciones claras y plazos que se ajusten a tu economía.

Hipoteca Premium

Menos ataduras, más claridad. Estudiamos alternativas con vinculaciones reducidas y te explicamos qué compensa en tu caso.

Hipoteca Reunifica

Una sola cuota para ordenar tus finanzas. Valoramos si te conviene reunificar deudas para reducir la cuota mensual y ganar margen.

Cambio de Casa

Compra tu nueva casa sin frenar la venta de la anterior. Te orientamos sobre soluciones puente para que puedas hacer el cambio con más tranquilidad.

Encuentra la vivienda ideal para ti

Te ayudamos a encontrar la propiedad perfecta según tus necesidades y presupuesto. Nuestro equipo de expertos te asesorará en cada paso del proceso para que tu compra sea segura, rápida y sin complicaciones.

Te acompañamos hastata el final

Nuestro compromiso no termina con la venta. Con nuestro servicio de post-venta, te acompañamos en cada detalle para que el proceso sea sencillo y sin preocupaciones.

Asesoría inmobiliaria a tu medida

Déjate guiar por nuestros expertos y obtén el mejor asesoramiento en compra, venta o alquiler de propiedades. Conocemos el mercado y te ofrecemos soluciones personalizadas para que tomes decisiones estratégicas con confianza y seguridad.

Impulsa tu propiedad con nuestros servicios

Selecciona el servicio que necesitas y nuestro equipo de expertos se pondrá en contacto contigo para ofrecerte la mejor estrategia. Desde marketing inmobiliario hasta fotografía profesional o tour virtual, te ayudamos a destacar en el mercado.

Descubre el valor real de tu vivienda

Déjanos tus datos y nuestro equipo de expertos analizará tu propiedad para ofrecerte una valoración precisa basada en el mercado actual. Te ayudamos a tomar la mejor decisión para vender con éxito.

¿Listo para vender?

Te ayudamos en cada paso para conseguir el mejor precio

Déjanos tus datos y uno de nuestros expertos se pondrá en contacto contigo para asesorarte en cada paso del proceso de venta y conseguir las mejores condiciones.

Contacta con nuestro equipo

Déjanos tu mensaje y nuestro equipo se pondrá en contacto contigo para ayudarte con cualquier necesidad inmobiliaria.

Contacta con expertos en reformas

Para aumentar el valor de tu casa en tiempo récord

Resumen de privacidad

Esta web utiliza cookies para que podamos ofrecerte la mejor experiencia de usuario posible. La información de las cookies se almacena en tu navegador y realiza funciones tales como reconocerte cuando vuelves a nuestra web o ayudar a nuestro equipo a comprender qué secciones de la web encuentras más interesantes y útiles.