Local comercial en venta en Torrevieja, ideal para emprender o invertir.
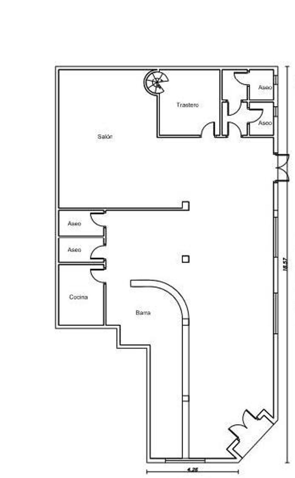
Cuenta con una superficie construida de 174 m², distribuida en un espacio diáfano que permite múltiples posibilidades de adaptación según la actividad.
Ubicado en zona urbana consolidada, con buena accesibilidad y cercanía a servicios, comercios y tránsito peatonal, lo que favorece la visibilidad del negocio.
El inmueble, construido en 1995, se encuentra clasificado como almacén, siendo perfecto para uso industrial, logístico o comercial.
Dispone de fácil acceso para carga y descarga, además de buena conexión con las principales vías de la localidad.
Oportunidad interesante tanto para uso propio como para rentabilidad mediante alquiler.
No dejes pasar esta ocasión de adquirir un local versátil en una ubicación estratégica.
Ideal para desarrollar tu proyecto con éxito.